Котел КВа-1,25М отработка в Белгороде

Водогрейный, отопительный, автоматический, жидкотопливный, отработанное масло, под горелку, 1,25 МВт (1250 кВт), 95...110 °C, 0,6 МПа (кгс/cм²).

Цена:
450 000 руб.
Количество:
Отправляя свои личные данные через формы на сайте, Вы даёте своё согласие на обработку персональных данных согласно Федеральному закону №152-ФЗ «О персональных данных» от 27.07.2006 г. в редакции от 01.07.2017.

Описание котла

Водогрейный котел КВа-1,25 – это агрегат, использующийся для отопления и горячего водоснабжения жилых, административных и производственных зданий. Котел работает автоматически, топливоподача и золоудаление автоматизировано. В качестве топлива используется отработанное масло, также в зависимости от горелки можно использовать и другие виды топлива. Котлы на отработке рассчитаны на поддержание температуры нагрева жидкости от 95 до 110 °С. Устанавливается в котельные на отработке.

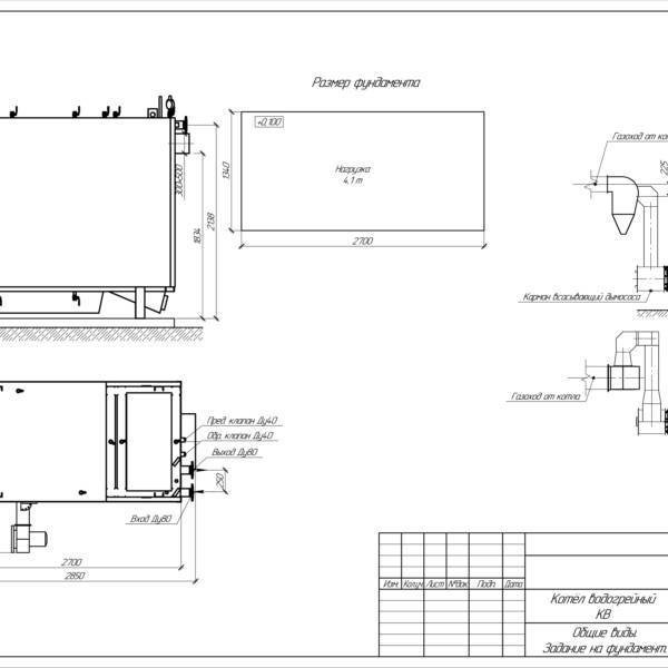
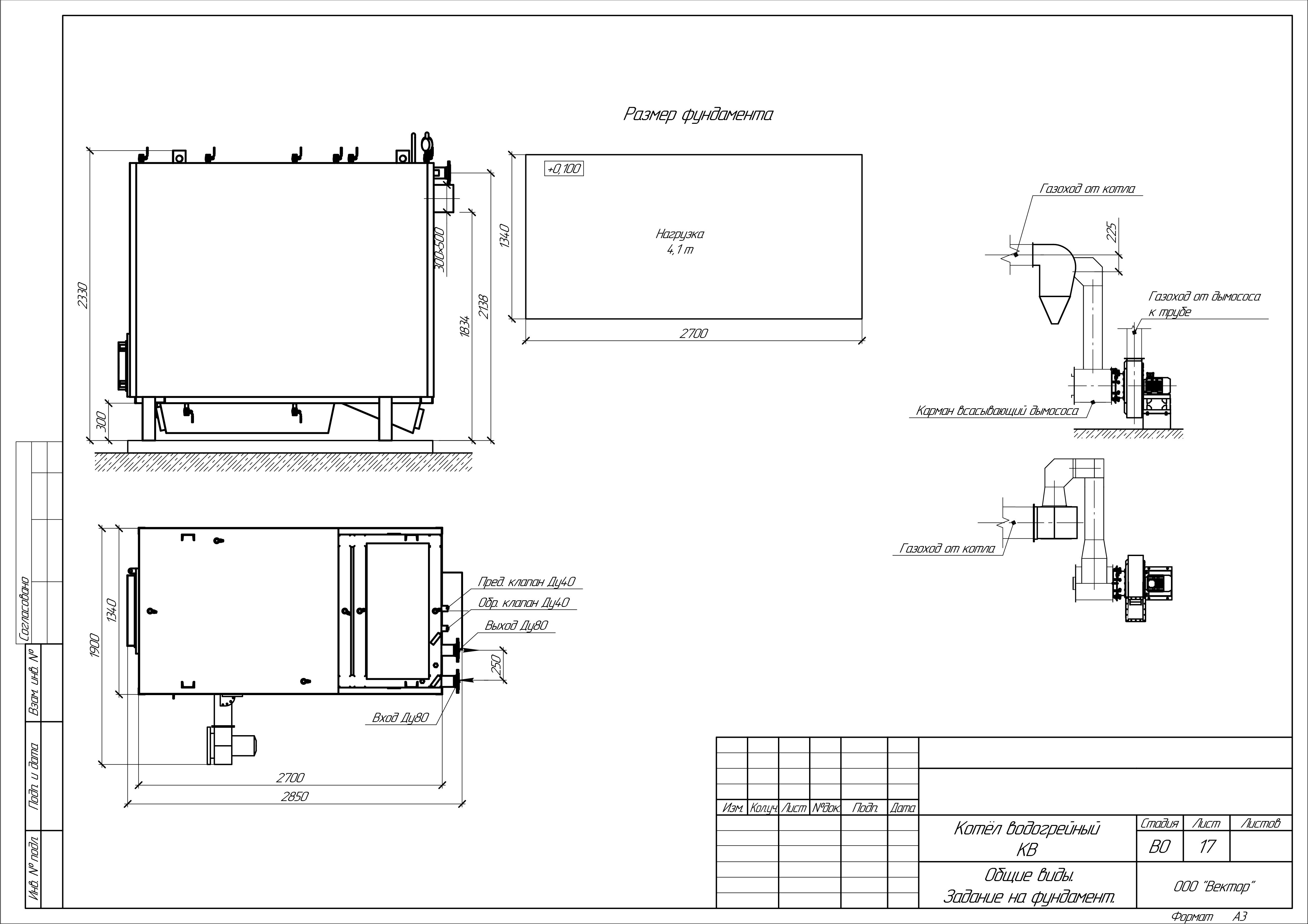
Конструкция жидкотопливного котла КВа состоит из сварной трубной системы, так называемого блока котла и газоплотной топочной камеры. Котел мощностью 1,25 МВт (1250 кВт) покрыт окрашенным металлическим корпусом, который защищает от коррозии и механических повреждений. Специальные прочные панели обеспечивают защиту от утечки. Газоплотные и негазоплотные части котельного блока, чтобы сократить теплопотери, обшиты теплоизоляционным материалом: плитами ПТЭ и войлоком.

Установка водяного котла КВа-1,25 осуществляется на фундамент и требует закрепления специальными болтами. Габаритные размеры по длине, ширине и высоте: 2,85х1,35х2,35 м. Отапливаемая площадь достигает – 12500 м². Агрегат компактен, безопасен и прост в эксплуатации, имеет высокий урокень КПД, нет необходимости в водоподготовке. Водотрубный котел с горелкой не требует постоянного контроля оператора — кочегара. Расход отработанного масла небольшой – 146 кг/ч. Сбоку котла монтируется дверка для обслуживания топочной камеры.

При должном соблюдении правил использования, а это своевременная очистка топки от нагара, можно забыть о поломках и снижении производительности отопительного котла КВа, что дает срок службы не менее 10 лет.

Более подробную информацию Вы можете получить у наших специалистов. Чтобы купить отопительный водогрейный котел КВа-1,25 на отработанном масле под горелку мощностью 1,25 МВт (1250 кВт), достаточно позвонить нам либо оставить заявку и мы обязательно с Вами свяжемся.

Характеристики
Тип: КВа
Вид топлива: Жидкотопливный
Мощность: 1.08 Гкал
Мощность: 1250 кВт
Мощность: 1.25 МВт
КПД, не менее: 92 %
Вид топки: Автоматический
Класс котла: 1
Отапливаемая площадь: 12500 м²
Отапливаемый объём: 33750 м³
Тяга: Естественная
Температура воды на выходе, не менее: 70...95 °С
Аэродинамическое сопротивление: 210 Па (мм. вод. ст.)
Расход теплоносителя среды: 43 м³/ч
Расход условного топлива: 167 кг/ч
Расход топлива: 146 кг/ч
Массовый расход уходящих газов: 0.41 кг/с
Низшая теплота сгорания топлива: 8000 кКал/кг
Давление рабочей среды: 0,6 МПа (кгс/cм²)
Гидравлическое сопротивление при перепаде t: 0,08 МПа (кгс/cм²)
Температура воды на входе в котёл, не менее: 60 °C
Температура уходящих газов: 170…250 °C
Радиационная поверхность нагрева: 15.1 м²
Конвективная поверхность нагрева: 42 м²
Номинальное разрежение в топке при работе: 20…60 Па
Габаритные размеры (ДxШxВ): 2850х1350х2350 м
Масса котла (без воды): 3100 кг
Расчетный срок службы, не менее: 10 лет
Серия: КВа
Тип котла: Водогрейный
Топливо: Отработка
Топка: Под горелку

Города поставок

Москва
Пн-Пт 09:00 - 18:00
Сб 09:00 - 17:00
Карачаево-Черкесская Республика
Пн-Пт 09:00 - 18:00
Сб 09:00 - 17:00
Екатеринбург
Пн-Пт 09:00 - 18:00
Сб 09:00 - 17:00

Совершите покупку за 4 шага

Шаг 1
Выберите товары из каталога
Шаг 2
Поместите нужные вам товары в корзины
Шаг 3
Укажите свои контактные данные в форме обратной связи
Шаг 5
Ожидайте звонка от менеджера для оформления покупки

Похожие товары

КВм
Котлы КВм
Цена от 0 руб.
Отопительные котлы
Водогрейный котел КВм-7.0 на ДВО используется для нагрева жидкости до 115 °С, применяемой в системах отопления и горячего водоснабжения. Отопительные приборы КВм-7.0 способны прогревать помещения площадью до 70000 м². Твердотопливный котел оснащается механической топкой на древесных отходах со шнековой подачей. Дополнительно к агрегату приобретаются сопутствующие товары: вентиляторы, дымососы, циклоны, дымовые трубы, бункер топки и другое котельное оборудование.
Отопительные котлы
Водогрейный котел КВм-6.3 на ДВО используется для нагрева жидкости до 115 °С, применяемой в системах отопления и горячего водоснабжения. Отопительные приборы КВм-6.3 способны прогревать помещения площадью до 63000 м². Твердотопливный котел оснащается механической топкой на древесных отходах со шнековой подачей. Дополнительно к агрегату приобретаются сопутствующие товары: вентиляторы, дымососы, циклоны, дымовые трубы, бункер топки и другое котельное оборудование.
Вы смотрели эти товары
Отопительные котлы
Водогрейный, отопительный, автоматический, жидкотопливный, отработанное масло, под горелку, 1,25 МВт (1250 кВт), 95...110 °C, 0,6 МПа (кгс/cм²).